Spectaculaire metamorfose appartement Amersfoort

Interieurontwerp in Leusden

Verbouwing van jaren 70 woning Amersfoort

Project woonvilla Soest- Zuid

Tuinontwerp Almere

                  Interieurontwerp tuinkamer Amersfoort       

Keukenontwerp jaren 90 keuken  Amersfoort   

Keukenontwerp Jaren 30 Woning Amersfoort

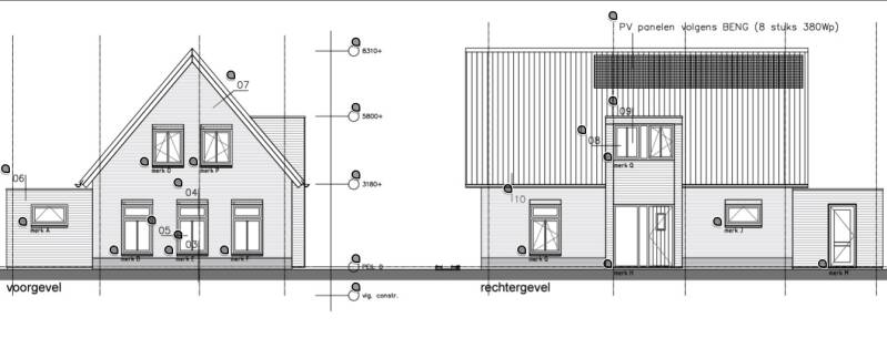
Nieuwbouw woning Nijkerkerveen, ontwerp en realisatie

Project verbouwing Nijkerkerveen

Interieurontwerp & verbouwing bovenverdieping Amersfoort

Interieurontwerp en styling advies in Hoogland

Interieuradvies Hoevelaken

Ontwerp& projectbegeleiding van sportkantine ASV UVV 

Make-over Amersfoort

Interieurontwerp ontvangstruimte Yoga studio Lemonpit

Interieuradvies en interieurontwerp voor villa Hoogland                              

 Interieuradvies  in Nijkerk

Tuinontwerp - Veranda Amersfoort

Interieuradvies Woudenberg

Komt hier jouw project ?